物件一覧






















熱海駅からバスで15分、最寄りのバス停から徒歩3分、静かなエリアの高台に建つマンション。
淡いグリーンの外壁が、個性的で可愛らしいのです。
近くに駐車場があるので、車をお持ちの方は通勤もしやすく、お休みの日にはドライブも楽しめますね。
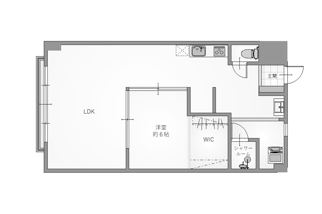
今回ご紹介するのは3階、リノベーションされた2K(35㎡)のお部屋です。
シューズボックスが備え付けられた玄関から入り、まずは居室を見ていきましょう。
まずは、手前にある4.5帖の洋室から。キッチンや隣の洋室とは、襖で隔てられています。
こちらの洋室の奥には、カーテンで仕切られた収納スペース。
3段の棚と、丈の長いコート類もかけられるパイプハンガーが備え付けです。
広さがあるので、衣類だけでなく家電や趣味のアイテムなども、こちらに収納してしまいましょう。
続いては、6帖の洋室。
鮮やかなビタミンカラーの壁は、毎日ふと目に入るだけでも、何だか元気をもらえそう。
DIYも可能なこちらのお部屋。この壁に、自分好みのレイアウトでウォールシェルフを付けて、雑貨や本を飾ることもできちゃいます。
ワンちゃんやネコちゃんとも一緒に暮らせる物件なので、思い切ってキャットウォークを作ってみる、というのもいかがでしょう…!
目線を上に移せば、天井は異なる2色の板で貼られていて、こちらも個性あり。
バルコニーはありませんが、窓の外にはフラワーボックスと物干し金具がついているので、洗濯物の外干しもOK。
プランターでお花やハーブを育ててみるのもいいですね。
窓からは、緑豊かな熱海の山の景色が見えます。初夏の緑、晩秋の紅葉、季節ごとに表情を変える自然と一緒に暮らせるなんて、贅沢。
在宅ワークをするなら、この窓際に机を置いてみたくなります。時々、外に目線を移して気分をリフレッシュ、お仕事も頑張れるはず。
襖を取り外してしまって、広々ワンルームのように使っても◎
お好みで生活空間を区切ったり、まとめたり、自由度高く使えそうなのも、この間取りの特徴です。
キッチンの隣にダイニングテーブルを置けば、窓の外の緑を眺めながら、すがすがしい気持ちで朝ごはんを食べられそう!
キッチンの背面には、家電を置けるスペースもしっかり設けられています。
冷蔵庫を置いて、その隣にスリムな食器棚か、キャスター付きのワゴンを並べるのも良さそうです。
水回りは、リノベーションされて清潔感があり、コンパクトながら使い勝手の良い作りです。
洗面台には、大きな縦長の鏡。上半身全体をばっちりチェックできるので、毎日の服のコーディネートも楽しくなりそうですね。
お掃除も楽な、シンプルなガラス張りのシャワールーム。
徒歩圏内に日帰り温泉等はないのですが、時にはバスや車を活用して湯めぐり、というのも特別感があって良いかもしれません。
玄関から水回りにかけては、モノトーンに統一されたシックなデザイン。
ビタミンカラーの居室とのギャップも、自宅の中で場所によって気分がぱちりと切り替えられる感じ…イイ!
徒歩圏内のおすすめスポットは、歩いて15分の距離にある、熱海の街並みを一望できる週末限定のカフェ「Maries Kitchen Weekend cafe」。
お散歩がてら、のんびりランチも楽しめます。
街からは少し距離を置いて、穏やかな自然のそばで、ペットとも一緒に暮らせるお部屋。
家賃にWi-Fiの料金が含まれているので、自宅でお仕事をされる方にもおすすめの物件です。
ぜひ、お気軽にお問い合わせください。
熱海市青葉町
賃貸- 物件名グリーンハウスA301
-
所在地静岡県熱海市青葉町2-30
- 交通JR東海道本線「熱海駅」までバス15分 「土橋」 徒歩2分
- 賃料65,000円
- 管理費なし
- 敷金1ヶ月
- 礼金1ヶ月
- 仲介手数料1.1ヶ月
- 間取り2K
- 専有面積35m²
- 構造RC造
- 階数3階/4階建
- 築年築51年
- 用途住居
- 契約期間2年
- 保証会社41,650円(初年度)
- 入居可能日2026年2月以降
- 駐車場近有 5,000円/月
- 設備収納スペース・室内洗濯機置場・モニター付インターホン・フローリング・都市ガス・インタ ーネット対応・ケーブルTV
-
その他♢ ペット可
♢ DIY可
♢ Wi-Fi家賃に含まれる
♢ 定期的なシャワーブースの換気が必要です
※別途 町内会費800円、水道料2500円が掛かります。





