物件一覧
























JR伊東線来宮駅から徒歩14分、熱海市指定有形文化財の起雲閣から徒歩2分の閑静なエリアに建つ、レトロチックなビルです。
熱海駅行きのバス停までは徒歩1分、スーパーや市役所にも歩いて数分の便利な立地です。
店舗やギャラリー、カルチャースクール、静かな環境を活かしてリラクゼーション系のサロンとしてもおすすめな物件です。
海にも徒歩で行ける距離なので、昭和町のお店や文化施設巡りと合わせて案内なども◎
***
1階には、シャッター付きで、4台駐車可能な駐車場があります。雨風が入って来ないの嬉しいですね。
角丸の窓と入口がキュート。
床や壁のやタイル装飾が可愛らしいです。
廊下の赤いクッションフロアは、純喫茶で見かけるデザインで、思わずほっこり。
階段を上がり、ガラス扉を開けると広々とした空間が広がっています。
エレベーターもあるので、重い荷物を運ぶ時も安心。
空間が仕切られているので、1部屋を事務所として利用するのもいいですね。
バーカウンターのあるお部屋は会社メンバーの休憩スペースに。お昼ご飯を食べる時も、なんだか気分が上がりそうです。
また、水回りの設備が整っているのも、こちらの物件の魅力です。
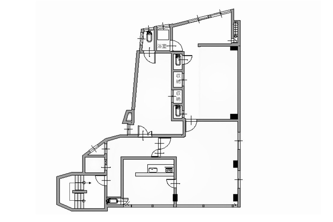
奥にはお風呂もあり、生活ができる設備が整っているので、暮らしながら店舗運営や、ものづくりも。
裏口からも外に出れるので、お客様の入口と分けて使えるのもいいですね。
***
屋上からは熱海の街を一望。
心地より風を感じながら、海や山を眺めてほっと一息。
商品の写真を撮る時にも最高のロケーションです。
文化財や美術館、新しいお店のオープンなど、賑わいを見せる昭和町エリアです。
お店をはじめたい方、会社のお引越しを考えている方…気になる方はお気軽にご相談ください。
熱海市昭和町
賃貸- 物件名若林ビル2階
-
所在地静岡県熱海市昭和町11-6
- 交通伊東線「来宮駅」より徒歩14分
- 賃料-
- 管理費-
- 敷金-
- 礼金-
- 仲介手数料-
- 間取り1フロア
- 専有面積170.87㎡
- 構造鉄筋コンクリート造
- 階数地上4階/2階
- 築年1973年11月
- 用途事務所・店舗
- 契約期間2年
- 保証会社あり
- 入居可能日即日
- 駐車場あり
- 設備公営水道/都市ガス/本下水
- その他飲食店不可



















