物件一覧


































今回ご紹介する物件は、熱海銀座商店街エリアに位置する、3階建ての一軒家。
観光客も地元の人も行き交い、街のエネルギッシュな空気を身近に感じられるエリアです。
JR熱海駅からは徒歩で16分ほど。電車や新幹線を使えば、東京方面へのアクセスも良好です。
スレートグレーの外壁がきりりとスタイリッシュ。長くこの街に佇んできた建物ならではの落ち着いた雰囲気も感じられます。
こちらの物件は、住居兼店舗として利用が可能です。1階部分を店舗として使うことができます。
玄関はざらざらとした玉砂利の風合いを味わえる、洗い出し仕上げ。伝統的な左官技法ですが、現代の暮らしにもしっくりと馴染みます。
収納量の大きいシューズボックスは、店舗を構える場合はなおさら重宝しそう。
全身を写せるスリムな鏡が付いているのも良いですね。
1階は、畳や障子が純和風の趣を残しつつ、水回りは現代の生活に合わせて綺麗にリノベーションされています。
飲食店を中心に、コンパクトながら魅力的な商いのひしめく銀座町エリア。こちらの物件は最も賑わう銀座商店街の裏通りにあたり、人の流れがありつつ落ち着いた雰囲気も感じられます。
銀座商店街の往来を歩いてきて、静かな場所で休憩したいなあと思った時に、ちょうど良い場所。ここでお店を始めるなら、ちょっと座れるスペースも備えた物販店や、アトリエ兼ショップなんて、ぴったりかもしれません。
キッチンは3口のIHコンロと魚焼きグリル、広めのシンクにたっぷりの収納と、使い勝手抜群。
事前申請を行えばリフォームや造作も可能なので、飲食店として使用できるようなキッチンに整えていくこともできそうです。
1階の水回りはそれぞれ、ゆとりのある作り。
浴室には便利な追い焚き機能も付いています。
こちらの物件はお手洗いが各階にあるので、店舗と住居など、フロアごとの使い分けがしやすくなっています。
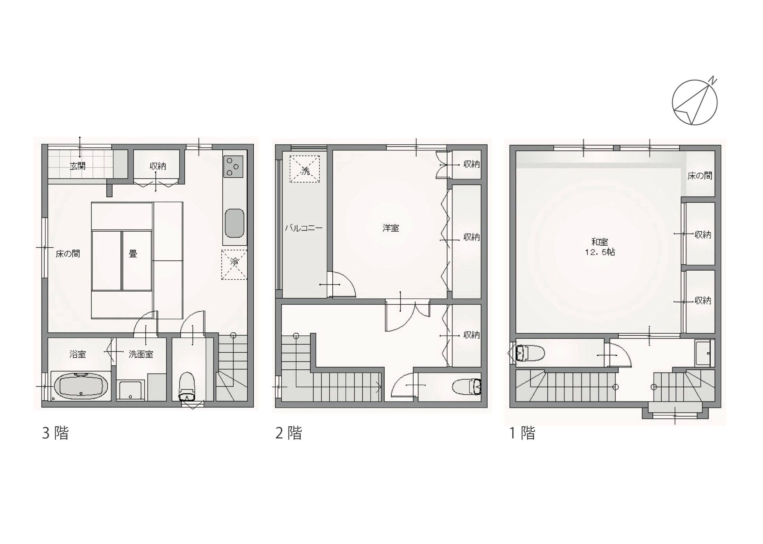
ゆとりある3Kで、暮らしと仕事を分けやすい間取り。
各階の用途を切り分けやすいのが、こちらの物件の特徴。
2階へ続く階段の前にはロールスクリーンが設置され、店舗兼住宅として使用する場合に生活スペースがお客様の目に入らない工夫がされています。
間取りは1階から3階まで、各階に居室が1つずつ。
2階は畳のお部屋です。障子窓に付いたロールスクリーンを下げれば、外からの光量もしっかり調整できます。
掛け軸や生け花を飾る場所、そんなイメージが強い床の間ですが、趣味のアイテムやテレビを置いたりと、自由度高く活かせるのもおすすめです。
押入れはスライドドアで開閉しやすく、ポールハンガーも付いています。
先ほどご紹介した通りお手洗いが各階にあるだけでなく、2階には独立洗面台も付いているのが嬉しいポイントです。
廊下に吊るされた照明が、旅館のようで可愛い…!
全体的に使いやすくリフォームされている一方で、こうして和風の建築様式も引き継いでいるところに、和洋折衷の魅力を感じます。
3階の特色はずばり、「収納」。廊下にもクローゼット型の収納が設けられています。
お部屋は畳の1階・2階とは異なり、つややかなフローリングの洋室です。
お部屋の中にもこんなにたっぷりの収納スペース!
1階を店舗利用する場合、3階は在庫を保管する倉庫としても活躍してくれそうです。
3階のバルコニーには洗濯機置き場があり、物干し竿も使えます。
シンプルながら、生活に必要な設備が整った住まいです。
居室にはもちろん、水回りの近くや階段の途中にも窓が付いているので、建物全体、常に新鮮な空気を取り込むことができます。
近隣には、地元で採れた新鮮な海の幸が並ぶ魚屋さん、干物屋さんに鰹節屋さん、和菓子屋さんに喫茶店…。街の人たちに長年愛されるお店が並んでいます。
また最近では、無人の古書店「ひみつの本屋」、セレクトショップ兼ギャラリー「熱海分福」、日本茶セレクトショップ「CHABAKKA TEA PARKS」、夜営業の雑貨店「ヨルノアタミ」など、個性的なコンセプトのお店も増えており、歩いているだけでも楽しいエリアです。
ドラッグストアや家電量販店、書店が入った大型スーパーも徒歩4分ほどと、日々のお買い物にも困りません。少し足を伸ばせば海にも出られる距離で、街と海の両方を身近に感じながら暮らせそうです。
街の中心部で暮らしと仕事を行き来するような住まい方に、関心を持っている方。熱海でお店を構え、新しい挑戦をしてみたい方。
ぜひ、お気軽にお問い合わせください。
熱海市銀座町
賃貸- 物件名銀座8番地H邸
-
所在地静岡県熱海市銀座町
- 交通JR東海道線「熱海」駅 徒歩16分
- 賃料170,000円
- 管理費なし
- 敷金1ヶ月
- 礼金1ヶ月
- 仲介手数料1.1ヶ月
- 間取り3K
- 専有面積97.61㎡
- 構造木造
- 階数地上3階
- 築年1952年12月(昭和27年)
- 用途住居・店舗
- 契約期間2年(普通借家)
- 保証会社要加入
- 入居可能日いつでも可能
- 駐車場なし
- 設備公営水道・都市ガス・本下水・バルコニー・各階トイレ・浴室追焚機能・IHヒーターキッチン・収納・インターホン
-
その他♢ 現在入居中(3月末退去予定)
♢ 住居兼店舗として募集(店舗利用は1階部分のみ)
♢ リフォームや造作、設備設置は事前申請必須
♢ 内装修繕(既設設備含む)はすべて借主負担
♢ 宿泊事業不可
♢ ペット飼育不可
♢ 喫煙不可
♢ 楽器利用不可
♢ 町内会・商店街への加入必須

