物件一覧





















熱海と同じく、静岡県東部に位置する三島。観光地として栄える熱海に対し、三島は日々の営みが穏やかに流れているような街です。かつて宿場町として栄え、昔から人の行き来が多かったという背景もあって、移住者が新たな商いをはじめることも多いのだとか。(三島の街をもっと知りたい方は、こちらの記事もあわせてご覧ください)
そんな三島に、元倉庫の物件の募集が出ています。位置するのは三島大通りから少し入ったエリア。ここへ辿り着くまでの道のりも楽しんでもらえるような裏路地にあります。訪れる人には、秘密基地を見つけたようなわくわく感を抱いてもらえそう。
1階は、倉庫らしいインダストリアルな空間が広がっています。コーヒーの焙煎所や、富士山の湧水が豊富な三島の土地柄を活かしたウィスキー、焼酎などの蒸留所を構えるのもおすすめです。
以前は荷下ろし用のエレベーターを現役で使っていたそうですが、メンテナンスが難しいとのこと。使わずとも存在感があり、あえてそのまま残しておくのもいいかもしれません。
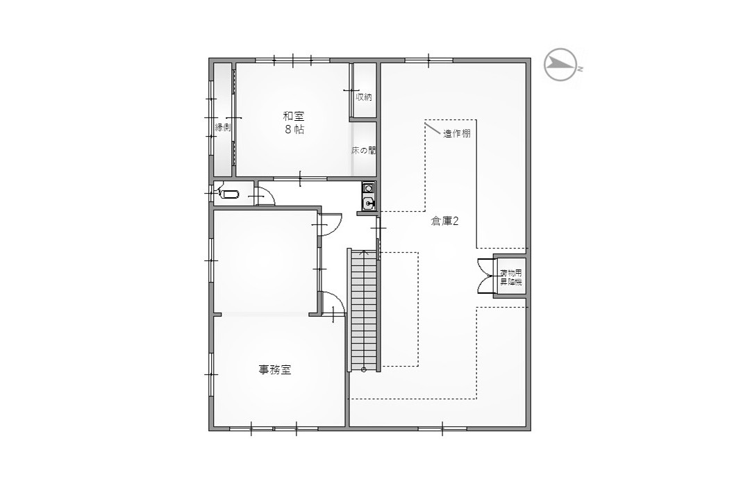
階段をのぼって2階へ上がると、倉庫からお家のような空間が広がっていました。和室、事務室として使われていた部屋、応接間として使われていた洋室、そして倉庫スペースに分かれています。
1階を焙煎所や蒸留所に、2階を販売、客席スペースとして活用するのも良さそうですし、ほかの業態の方たちとシェア店舗を運営するのもおもしろいかもしれません。
たとえば和室は、今海外でも注目されている抹茶を提供するお茶屋さんに入居してもらったり、まるっとリノベーションして小さなギャラリーにしたり。
事務室、応接間だった空間は、焼き菓子屋、古本屋、レコードショップなど、小さくビジネスをはじめたい人に貸し出したり、週ごとにお店が入れ替わるポップアップスペースにしたり。
段差があり、部屋ごとに雰囲気を変えやすい空間なので、複数の店舗に入ってもらってもそれぞれのお店の個性が出しやすいのではないかと思います。
「ここに来ればなにかある!」と思ってもらえそうな、街の文化の発信地になるポテンシャルを秘めているなあ……と想像が膨らみました。
当時のままのものになりますが、流し台やお手洗いもあります。
もしくはパーテーションなどで仕切って、入居するお店の在庫ストックスペースとして、置いている棚を活用するのもいいかもしれません。
元倉庫のスペースの奥のほうへと進むと、3階へとつながる階段があります。
3階はフラットな広々とした空間。天井が高く、抜け感があるので、時間を気にせずゆったり過ごせるカフェや、会員制ライブラリーなど常設店に入居してもらったり、アパレルの展示会やマルシェイベントなどが行えるレンタルスペースとして運用することもできそうな空間です。
オーナーさん曰く、三島は事業者同士のつながりが強く、移住してきた人の挑戦を応援する土壌がある街なのだそう。街の雰囲気を気に入っている方、移住してきた方も大歓迎!
三島の街の中心で、新たな文化を発信する拠点をつくりませんか?
※ 利用用途によっては、階数や面積に制限が生じる場合がございます。
三島市本町
賃貸- 物件名三島倉庫物件
-
所在地静岡県三島市本町12-15
- 交通東海道本線 三島 徒歩13分 ・伊豆箱根鉄道駿豆線 三島広小路 徒歩6分
- 賃料253,000円(税込)
- 管理費-
- 敷金2ヶ月
- 礼金なし
- 仲介手数料1ヶ月
- 間取り一棟
- 専有面積330.71㎡
- 構造鉄骨造
- 階数3階建
- 築年1969年11月
- 用途事務所・工場・物販店・飲食店・倉庫
- 契約期間定期借家 3年
- 保証会社要加入
- 入居可能日2025年3月以降
- 駐車場なし
- 設備ガス・水道(上下)・トイレ・洗面台
-
その他♢ 主要採光面 東
♢ 荷物用エレベーターはありますが、作動はしません。
