物件一覧























今回ご紹介するのは、熱海市西山町の高台に建つリゾートマンションです。
海と豊かな緑に囲まれた閑静なエリアで、来宮神社も徒歩圏内。
最寄りの来宮駅まではメインのエントランスからだと徒歩11分ですが、実は道のりをショートカットできる裏口もあります。
広々としたエントランスには、来客があったときに待っていただけるスペースも。
玄関扉は、深みのあるグリーンにゴールドのあしらいが施されたシックなデザイン。
セキュリティ面でも安心のカメラ付きインターホンも設置されています。
対して玄関の中は、壁も収納もホワイトに統一されたクリーンな空間。
シューズボックスだけでなく、大きめの収納がついているのもうれしいですね。
スーツケースや冬のコート、雨具など、出かける際に必要なものや、場所をとる掃除用具などを収納するのにちょうど良さそうです。
目が覚めるような、はたまた夢の中にいるかのような白さ……!
この真っ白な廊下を抜けて、リビングへと向かいます。
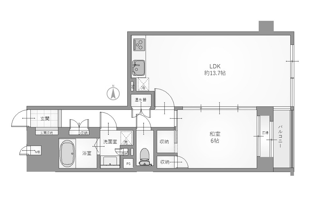
LDKは13.7帖。映画好きな人はプロジェクターを設置したり、本や漫画が好きな人オーダーメイドで壁一面を本棚にしたり。
別荘利用なら、とことんリラックスできるカウチソファや、リクライニングチェアを置いたり。
大きな家具を置いても十分な広さがあるので、ライフスタイルに合わせて空間作りができそうです。
窓に広がるのは海と山。
L字型の窓のおかげで、リビングも実際の広さ以上の開放感があります。
LDKに隣接する和室は6畳。
こちらは寝室にするのがいいかもしれません。
琉球畳のような縁なしの畳と、グレーのアクセントウォールが取り入れられ、モダンな空間になっています。
キッチンはコンパクトながら、IHコンロやグリルがついていて、日々の料理には困らない設備。
車で約5分の場所にドラッグストアや家電量販店、書店を併設した大型スーパーがあるので、お買い物にも便利な立地です。さらに、湯河原方面や三島方面へも車で気軽に足を伸ばせるため、週末のドライブを兼ねたお買い物も。
独立洗面台には大きな鏡付き。その横に洗濯機置き場があります。
タオルや洗濯でよく使う洗剤などの日用品の置き場は、空いているスペースを活用してラックや収納ボックスを後付けすればうまく解決できそう。
お部屋にもお風呂がありますが、こちらの物件には温泉大浴場も!
さっとシャワーを浴びたいときはお部屋で、ゆっくり湯船に浸かりたいときは大浴場で、とその時々で使い分けすることができます。
お手洗いはウォシュレット付きで清潔感のある空間。
よく見るとトイレットペーパーホルダーやタオルかけがアンティーク調のデザインでかわいいです。
温泉大浴場は、清掃時間を除いて、24時間利用が可能。
脱衣所も湯船も明るく開放的で、すみずみまで清掃や管理が行き届いていることが伝わってきます。ここで毎日ゆっくり温泉に浸かれるなんて幸せ……!
屋上からは熱海・来宮の街を一望。深呼吸したくなるくらい、清々しい空気です。
こちらはペット可の物件。大切なペットと一緒に暮らすお家をお探しの方にもおすすめです。
自然が豊かなので、ワンちゃんを飼っている方はたのしくお散歩できる環境。ネコちゃんも、リビングの大きな窓から降り注ぐ陽を浴びながらお昼寝できます。
別荘としてはもちろん、ワンちゃんやネコちゃんと安心して暮らせるマンションを熱海でお探しの方にぜひ!
熱海市西山町
売買- 物件名サンライフ熱海 5階
-
所在地静岡県熱海市西山町
- 交通JR伊東線「来宮」駅より徒歩11分・JR東海道線「熱海」駅より車で約7分(約㎞)・JR東海道線「熱海」駅よりバス利用 約12分 「日本鋼管前」下車 徒歩2分
- 価格2,080万円
- 管理費26,610円 (管理費 20,700円・修繕積立金5,910円)
- 敷金
- 礼金
- 仲介手数料売買代金の3%+6万円+消費税
- 間取り1LDK
- 専有面積59.15㎡・バルコニー 4.5㎡
- 構造鉄骨・鉄筋コンクリート造
- 階数5階/7階建
- 築年平成4年11月
- 用途住居
- 契約期間
- 保証会社
- 入居可能日相談(所有者別荘利用中)
- 駐車場15台(無料・車庫証明取得可)
- 設備バストイレ別・室内洗濯機置き場・収納・エアコン・独立洗面台・キッチン・バルコニー・温泉大浴場・屋上
-
その他♢ 主要最高面 東
♢ ペット可(飼育条件あり、管理組合への申請・許可が必要)
♢ 泉質 ナトリウム・カルシウム塩化物温泉
♢ 温泉使用料 4,600円/月
♢ 上下水道費 6,400円/月
管理費等月額支払い合計 37,610円(管理費・修繕積立費・温泉使用料・上下水道料)


